Photo 5
Photo 2
Photo 4
Photo 1
Photo 9
Photo 3
Photo 8
Photo 7
Photo 6
Photo 5
Photo 2
Photo 4
Photo 1
Photo 9
Photo 3
Photo 8
Photo 7
Photo 6

Three Double Bedrooms

Period Features

Lovely Living Room

Two Bathrooms

East Putney Tube

Furnished

Over Two Floors

Available April 4th

Excellent Order Throughout

Well Fitted Kitchen

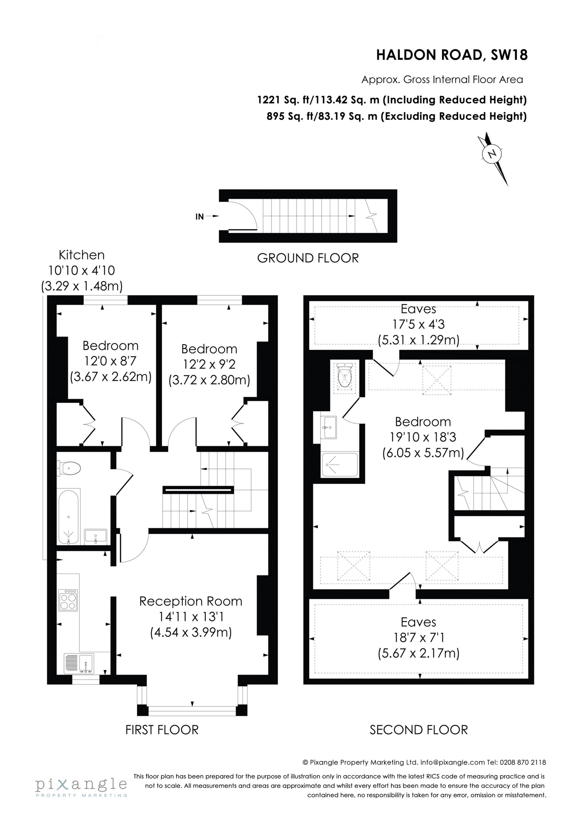
Wonderful three bedroom two bathroom flat over two floors of this impressive period building ideally located for East Putney Tube Station along with the excellent amenities of Southfields Village and Wandsworth High Street.
The property retains many period features and comprises on the first floor a spacious living room with lovely square bay window, fireplace and built in alcove cupboards, a fully fitted kitchen, two double bedrooms and large bathroom, whilst the top floor boasts the generous master bedroom along with modern en-suite shower room and access to the excellent under eaves storage.

Arrange a Viewing
This property is currently Let. However, register your details below and we will contact you if it becomes available again.
Floor Plan 1

IMPORTANT NOTICE

Descriptions of the property are subjective and are used in good faith as an opinion and NOT as a statement of fact. Please make further specific enquires to ensure that our descriptions are likely to match any expectations you may have of the property. We have not tested any services, systems or appliances at this property. We strongly recommend that all the information we provide be verified by you on inspection, and by your Surveyor and Conveyancer.

Call Seymour Green on 020 8870 0111