Photo 1
Photo 3
Photo 7
Photo 6
Photo 9
Photo 5
Photo 2
Photo 4
Photo 8
Photo 1
Photo 3
Photo 7
Photo 6
Photo 9
Photo 5
Photo 2
Photo 4
Photo 8

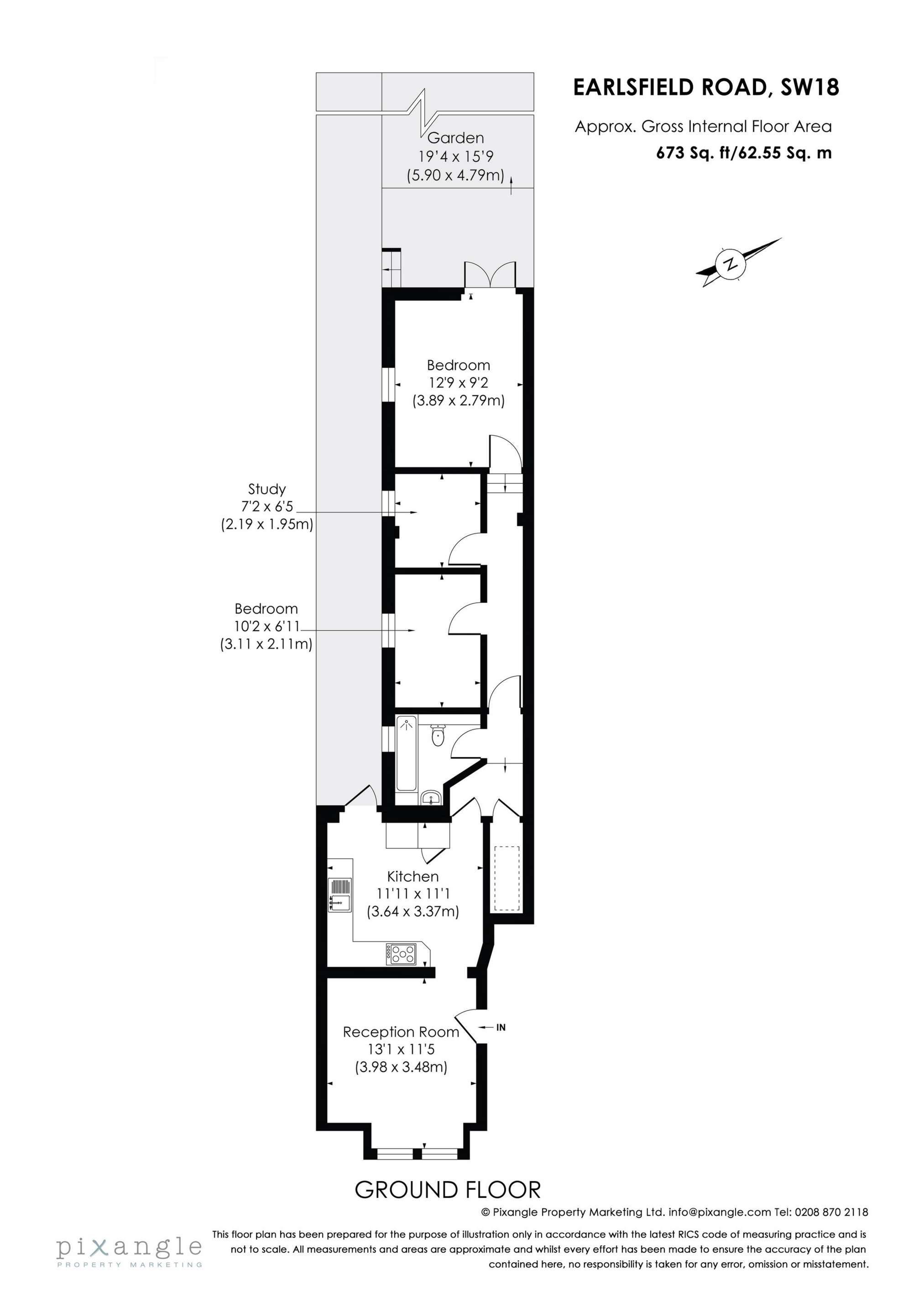
Spacious Ground Floor Flat

Private Rear Garden

No Onward Chain

Earlsfield Mainline

Superb Kitchen Breakfast Room

Two Double Bedrooms

Nursery/Study

Share of Freehold

Perfectly located for EARLSFIELD MAINLINE STATION along with the wide range of amenities on GARRATT LANE this delightful garden flat is being sold with No Onward Chain and Share of Freehold.
The spacious accommodation comprises TWO DOUBLE BEDROOMS, nursery/study, EAT IN KITCHEN, generous living room and modern bathroom, all complimented by the near 20ft rear garden.

Arrange a Viewing
Floor Plan 1

IMPORTANT NOTICE

Descriptions of the property are subjective and are used in good faith as an opinion and NOT as a statement of fact. Please make further specific enquires to ensure that our descriptions are likely to match any expectations you may have of the property. We have not tested any services, systems or appliances at this property. We strongly recommend that all the information we provide be verified by you on inspection, and by your Surveyor and Conveyancer.

Call Seymour Green on 020 8870 0111